Eemnesserweg 206 Hilversum

035-6854344
info@degooischemakelaar.nl
Verkocht

Eemnesserweg 206 Hilversum

Omschrijving

In rustige, gewilde straat van Hilversum, op loopafstand van bos en heide, winkelcentrum Seinhorst en dichtbij NS-stations en uitvalswegen ligt deze compleet gerenoveerde, karakteristieke en uitgebouwde jaren ‘30 middenwoning met zonnige achtertuin en achterom.

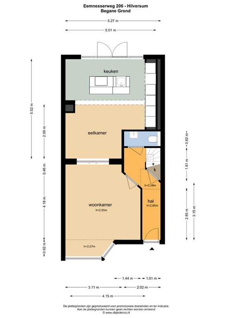
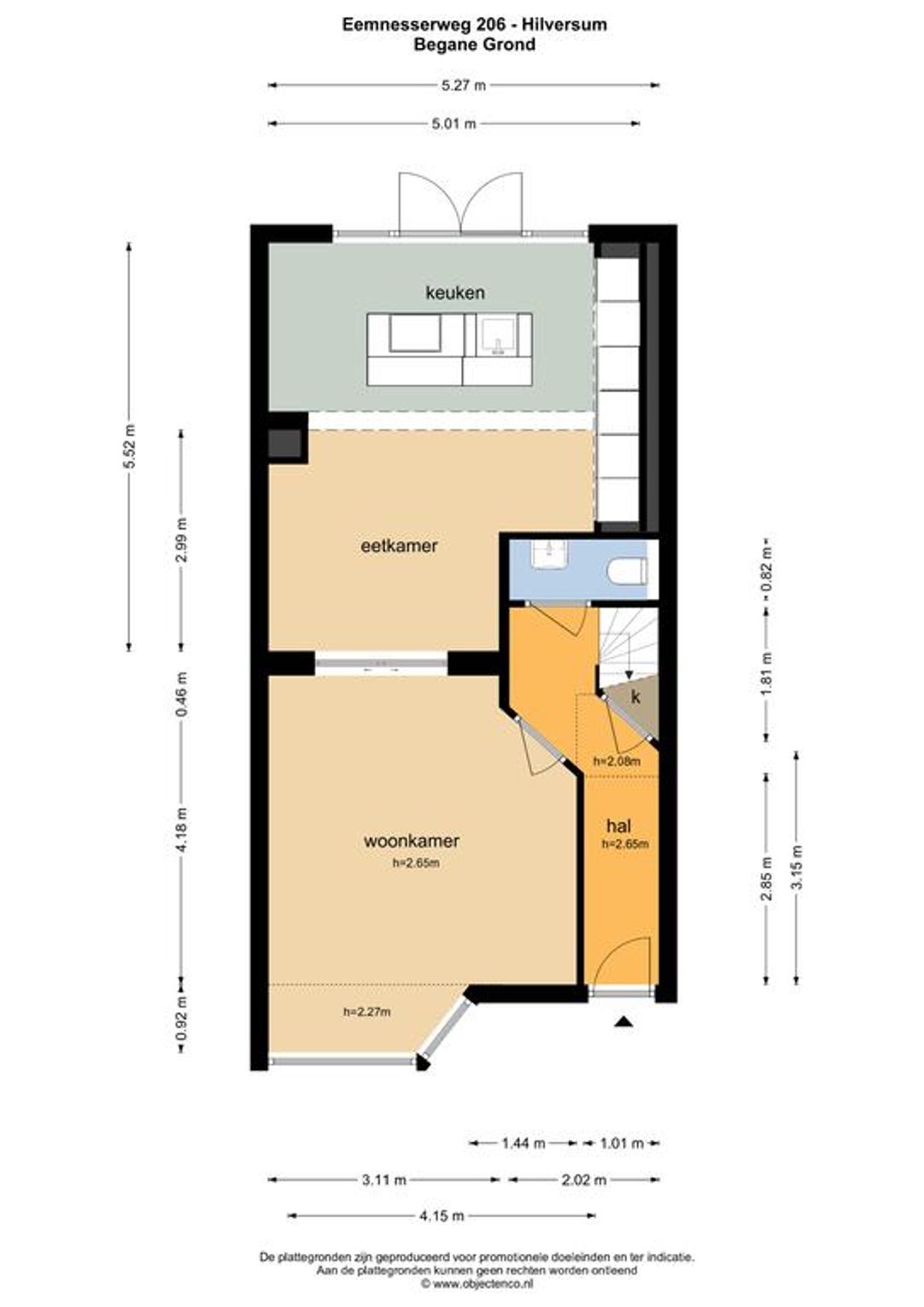
Indeling: Entree, hal, trapkast met vernieuwde groepenkast, ruim toilet met fontein, woonkamer en suite met erker, grote en lichte nieuwe woonkeuken met prachtige Italiaanse designkeuken en kookeiland voorzien van alle denkbare inbouwapparatuur en openslaande deuren naar de achtertuin op het zuiden met achterom.

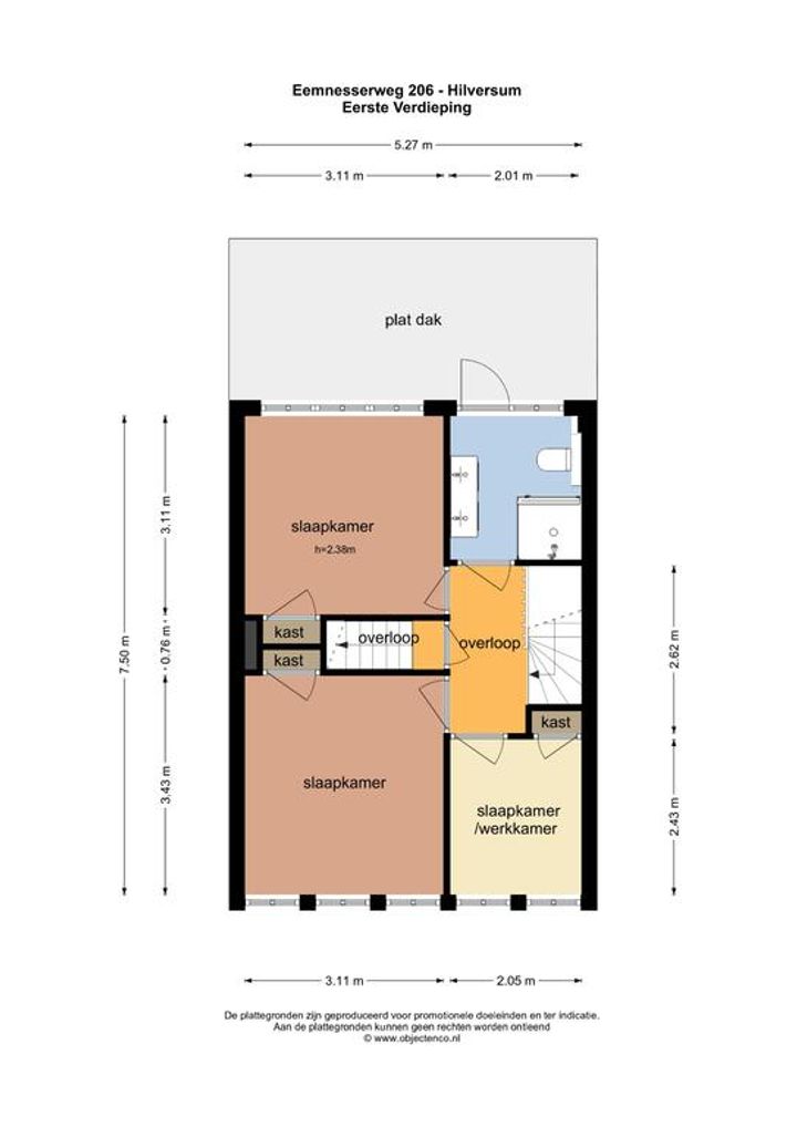
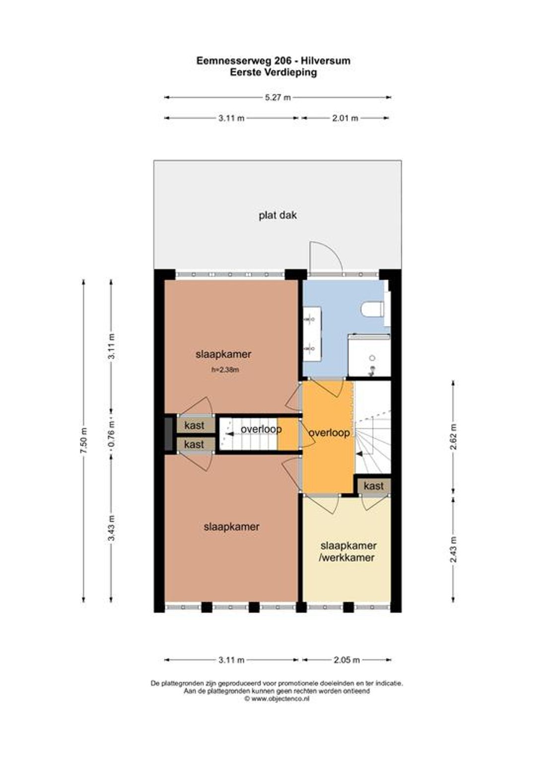
Eerste verdieping: overloop, 2 grote slaapkamers met inbouwkasten, 3e kleinere slaapkamer met inbouwkast, badkamer voorzien van inloopdouche, toilet, dubbel wastafelmeubel en een deur naar het dakterras (nog aan te leggen).

Zolder: via vaste trap naar 4e grote geïsoleerde slaapkamer met 3 dakkapellen, wastafelmeubel, bergruimte, aansluiting voor wasmachine en C.V.-ketelopstelling (Remeha bj. 2019). Deze verdieping is eenvoudig aan te passen, zodat 2 slaapkamers worden gecreëerd.

Bijzonderheden:
– Geheel gerenoveerd en uitgebouwd jaren ’30 gezinshuis;
– Vloerverwarming op de gehele begane grond en elektrische vloerverwarming in de badkamer;
– Voorzien van dubbelglas, muur-, vloer-, en dakisolatie;
– Energielabel A;
– C.V.-ketel Remeha bouwjaar 2019;
– Italiaanse designkeuken;
– Elektra is vernieuwd.

Lees de volledige omschrijving

Kenmerken

Algemeen

Aangeboden sinds
6+ maanden
Status
Verkocht
Aanvaarding
In overleg
Soort woonhuis
Eengezinswoning, tussenwoning
Soort bouw
Bestaande bouw
Bouwjaar
1931
Soort dak
Pannen
Ligging
Aan rustige weg, in woonwijk, vrij uitzicht

Oppervlakten en inhoud

Wonen
122 m²
Perceel
110 m²
Inhoud
422 m³

Indeling

Aantal kamers
5 kamers (4 slaapkamers)
Aantal badkamers
1 badkamer
Badkamervoorzieningen
Dubbele wastafel, inloopdouche, toilet
Aantal woonlagen
3

Energie

Energielabel
A
Isolatie
Dakisolatie, dubbel glas, muurisolatie, vloerisolatie
Verwarming
Cv ketel
Warm water
Cv ketel
Cv-ketel
Remeha (gas gestookt combiketel uit 2019, eigendom)

Kadastrale gegevens

Perceelnaam
Hilversum C 2770
Oppervlakte
110 m²
Eigendomssituatie
Volle eigendom
Perceel
HVS00-C-2770

Buitenruimte

Tuin
Achtertuin, voortuin
Achtertuin
31 m²
Ligging tuin
Zuid bereikbaar via achterom

Parkeergelegenheid

Soort parkeergelegenheid
Openbaar parkeren
Bekijk alle kenmerken

Overige media