Kamerlingh Onnesweg 130 Hilversum

035-6854344
info@degooischemakelaar.nl
Verkocht

Kamerlingh Onnesweg 130 Hilversum

Omschrijving

Bijzonder sfeervolle en karakteristieke 30-er jaren middenwoning, gelegen aan de rustige ventweg van de Kamerlingh Onnesweg, direct bij uitvalswegen, natuurgebieden, scholen en winkels. Dit heerlijke gezinshuis beschikt over 5 volwaardige slaapkamers en is goed onderhouden. Veel karakteristieke stijlkenmerken zijn nog bewaard gebleven zoals paneeldeuren, kamer en suite met schuifdeuren met glas in lood, de originele schouwen en openslaande stolpdeuren naar de tuin. De zonnige en rustige tuin beschikt over een schuur en een achterom.

Indeling:

Begane grond: vestibule met tochtdeur voorzien van glas in lood, gang, trapkast, toilet met fontein, woonkamer en suite met schuifdeuren met glas in lood, aan beide zijden van de kamers nog de originele marmeren schouwen, voorkamer met erker, achterkamer met openslaande deuren naar de tuin, moderne open keuken met diverse inbouwapparatuur.

Eerste verdieping: overloop, 3 slaapkamers, badkamer voorzien van douche, ligbad, wastafelmeubel, toilet en mechanische ventilatie.

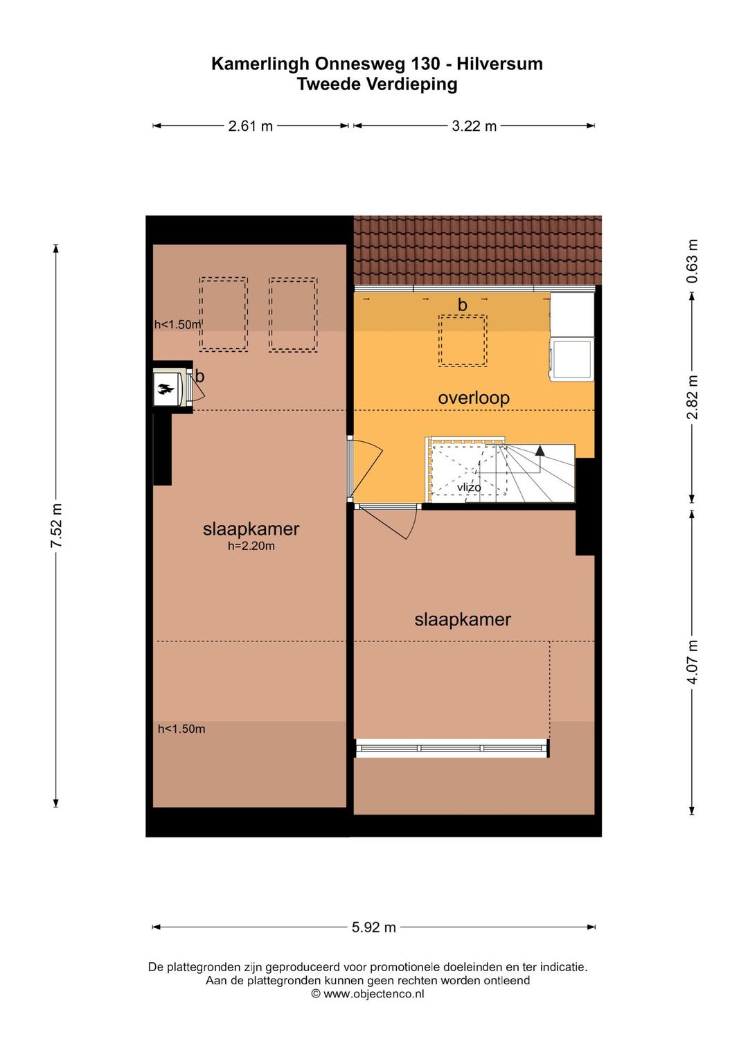
Tweede verdieping: vaste trap naar zolder, voorzolder met aansluiting voor de wasmachine, vlizotrap naar de vliering en veel bergruimte in de knieschotten, grote 4e slaapkamer met 4 Veluxramen en een kast met de C.V.-opstelling, 5e royale slaapkamer met dakkapel aan de voorzijde. De gehele kapverdieping is geïsoleerd.

Vliering:
Via vlizotrap bereikbare bergvliering voor opslag.

Tuin: er is een ruime voortuin en een vrije en zonnige achtertuin met schuur en een achterom via de schuur. De tuin is gesitueerd op het zuidoosten en biedt nagenoeg de gehele dag de zon.

Bijzonderheden:
• Gelegen aan de rustige ventweg van de Kamerlingh Onnesweg;
• Bijzonder sfeervol en goed onderhouden 30-er jaren huis;
• Nabij natuurgebieden;
• Veel stijlkenmerken zijn nog behouden gebleven;
• 5 volwaardige slaapkamers;
• Geheel voorzien van dubbele beglazing
• Vloerisolatie en kapisolatie.

Lees de volledige omschrijving

Kenmerken

Algemeen

Aangeboden sinds
6+ maanden
Status
Verkocht
Aanvaarding
In overleg
Soort woonhuis
Eengezinswoning, tussenwoning
Soort bouw
Bestaande bouw
Bouwjaar
1933
Soort dak
Pannen
Ligging
In woonwijk

Oppervlakten en inhoud

Wonen
128 m²
Externe bergruimte
6 m²
Perceel
148 m²
Inhoud
463 m³

Indeling

Aantal kamers
6 kamers (5 slaapkamers)
Aantal badkamers
1 badkamer
Badkamervoorzieningen
Dubbele wastafel, inloopdouche, ligbad, toilet
Aantal woonlagen
4
Voorzieningen
Dakraam, glasvezel kabel, mechanische ventilatie, tv kabel

Energie

Energielabel
E
Isolatie
Dakisolatie, gedeeltelijk dubbel glas, vloerisolatie
Verwarming
Cv ketel
Warm water
Cv ketel
Cv-ketel
Remeha HR (gas gestookt combiketel uit 2012, eigendom)

Kadastrale gegevens

Perceelnaam
Hilversum C 5006
Oppervlakte
148 m²
Eigendomssituatie
Volle eigendom
Perceel
HVS00-C-5006

Buitenruimte

Tuin
Achtertuin, voortuin
Achtertuin
53 m²
Ligging tuin
Zuidoost

Bergruimte

Schuur/berging
Aangebouwd steen

Parkeergelegenheid

Soort parkeergelegenheid
Openbaar parkeren
Bekijk alle kenmerken