Keverdijk 79 Naarden

035-6854344
info@degooischemakelaar.nl
Verkocht

Keverdijk 79 Naarden

Omschrijving

Goed onderhouden drive-in vijf kamer woning (hoekhuis) met uitzicht over de weilanden tot aan de rand van het Naardermeer (Goois Natuurreservaat).

Ligging:
– Snelweg A1 richting Amsterdam, Almere en Amersfoort binnen minuut te bereiken
– Op loopafstand van natuurgebied Naardermeer en de Naarden-Vesting
– Busverbinding op 100 meter afstand en treinverbinding, station Naarden-Bussum, binnen
2 km afstand

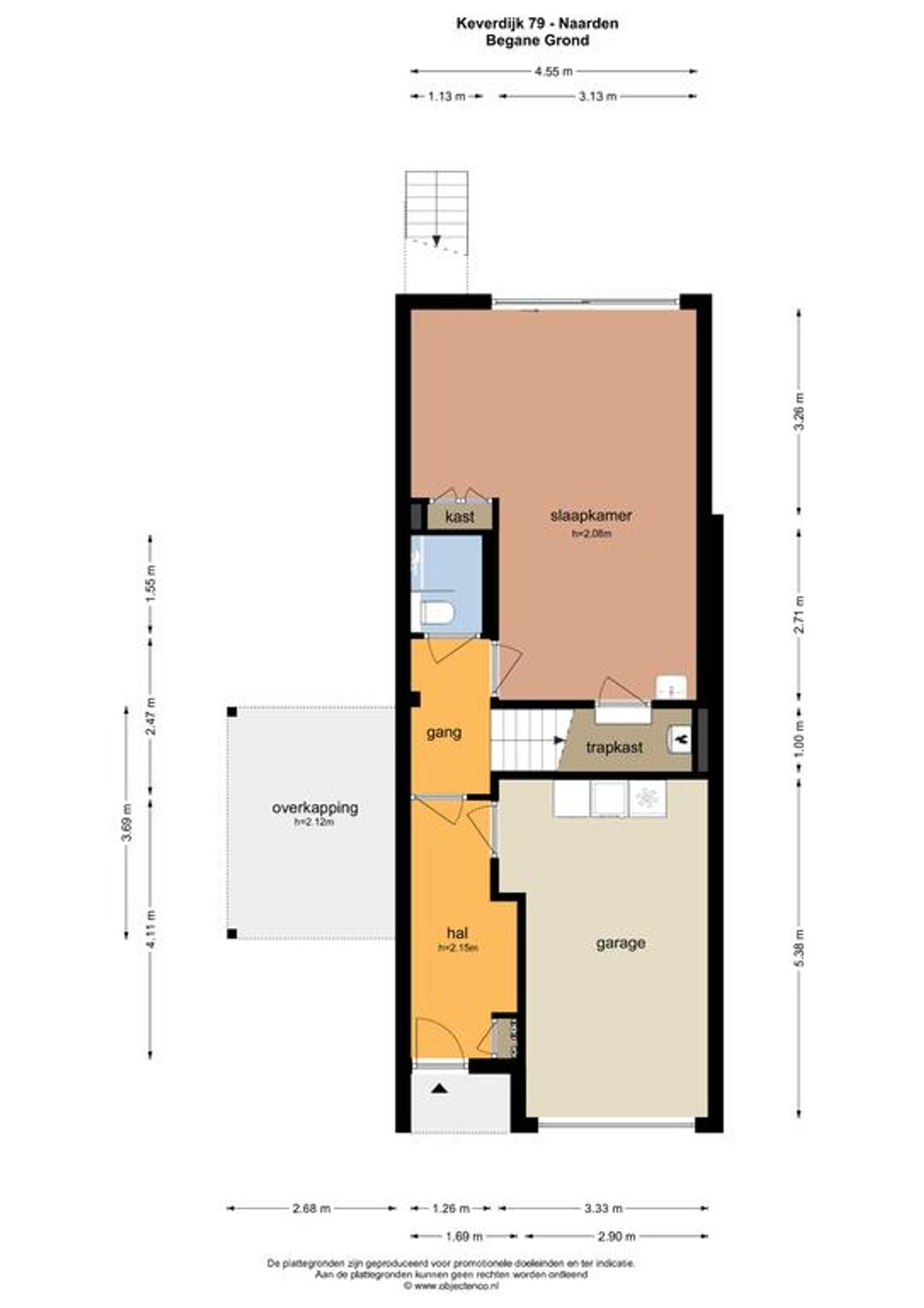
Indeling begane grond:
– entree, hal met meterkast en toegang tot garage, toiletruimte met nieuwe douche en grote slaap/hobbykamer.
– garage met verwarming en aansluiting en afvoer van wasmachine
– toiletruimte met toilet, fonteintje en automatische ventilator en nieuwe douche.
– uitgebouwde slaap/hobbykamer met ingebouwde convectorput, zeer geschikt als bedrijfsruimte.
– vanuit de slaap/hobbykamer heeft men toegang tot een ingebouwde stookruimte met cv.

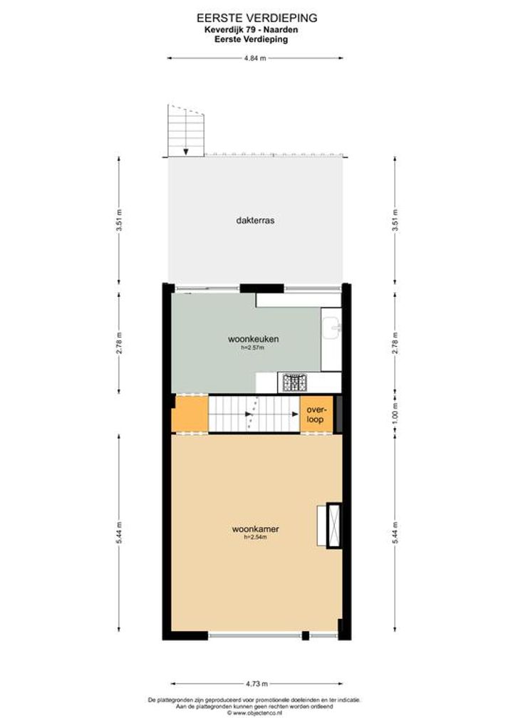
Indeling eerste verdieping:
– woonkamer voorzien van openhaard met schouw en ruim uitzicht over de weilanden.
– woonkeuken is ruim en eigentijds ingedeeld met alle benodigde apparatuur.
-de woonkeuken geeft toegang tot een zeer ruim balkon (15 m2) en trap naar de tuin met veel privacy.

Indeling tweede verdieping:
– 2 ruime slaapkamers met 4 grote kiep/kantel ramen.
– grote overloop met open trap naar derde verdieping
– badkamer met grote inloop douche, 2e toilet en wastafel.

Indeling derde verdieping:
– zeer ruime slaapkamer met groot dakraam.
– veel bergruimte aan beide zijde van de kamer

Indeling tuin:
– tuin toegankelijk via schuifpui slaap/hobbykamer of trap van balkon eetkamer/keuken
– achtertuin is fraai bestraat met oude klinkers.
– zijtuin ingericht om op diverse plekken zitjes te plaatsen (indien gewenst gehele dag zon).
– gehele tuin voorzien van een houten omheining met ingang aan achterzijde (steeg).
– nieuwe overkapping aan de zijkant van de woning.

Bijzonderheden:
-prachtig (blijvend) vrij uitzicht;
-ruime eigen oprit (ruimte voor 2 auto’s);
-inpandige garage;
-uitgebouwde slaapkamer/hobbykamer, zeer geschikt als bedrijfsruimte;
-zeer ruime zonnige zijtuin over de volle diepte van de woning;
-weinig onderhoud door kunststof kozijnen en aluminium schuifpuien;
-energiezuinig door dubbele beglazing, spouwmuur- en dakisolatie;
-de meeste plafonds zijn voorzien van gestukadoord schuurwerk;
-de meeste wanden zijn voorzien van spachtelputz.

Lees de volledige omschrijving

Kenmerken

Algemeen

Aangeboden sinds
6+ maanden
Status
Verkocht
Aanvaarding
In overleg
Soort woonhuis
Eengezinswoning, hoekwoning
Soort bouw
Bestaande bouw
Bouwjaar
1971
Soort dak
Pannen
Ligging
Aan drukke weg, in bosrijke omgeving, in woonwijk, vrij uitzicht

Oppervlakten en inhoud

Wonen
146 m²
Overige inpandige ruimte
17 m²
Gebouwgebonden Buitenruimte
27 m²
Perceel
220 m²
Inhoud
542 m³

Indeling

Aantal kamers
5 kamers (4 slaapkamers)
Aantal badkamers
1 badkamer
Badkamervoorzieningen
Inloopdouche, toilet, wastafelmeubel
Aantal woonlagen
4
Voorzieningen
Alarminstallatie, buitenzonwering, dakraam, glasvezel kabel, rookkanaal, tv kabel

Energie

Energielabel
D
Isolatie
Dakisolatie, dubbel glas, muurisolatie, vloerisolatie
Verwarming
Cv ketel
Warm water
Cv ketel
Cv-ketel
Remeha (gas gestookt combiketel uit 2008, eigendom)

Kadastrale gegevens

Perceelnaam
Naarden F 1636
Oppervlakte
220 m²
Eigendomssituatie
Volle eigendom
Perceel
NDN00-F-1636

Buitenruimte

Tuin
Achtertuin, voortuin, zijtuin
Achtertuin
90 m²
Ligging tuin
Noordoost bereikbaar via achterom

Bergruimte

Schuur/berging
Aangebouwd hout

Garage

Capaciteit
1 auto
Voorzieningen
Elektra, verwarming, water

Parkeergelegenheid

Soort parkeergelegenheid
Op eigen terrein
Bekijk alle kenmerken